家具のリフォームブログ
リフォーム専門 マルニファニシングの工場をご紹介「張り作業建屋1階」


お客様からリフォームのご依頼をいただいた際、弊社ではお住まいや修理内容によって対応する工場が変わります。広島にある本社工場のほか、家具のリフォームを専門とするグループ会社のマルニファニシングの工場があります。茨城県坂東市にあるので、社内では「バンドー」という愛称で呼ばれています。
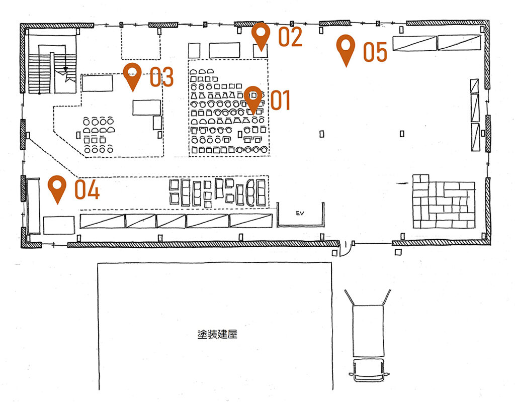
こちらの修理工場は「張り作業建屋1階」「張り作業建屋2階」「塗装建屋」の3つのエリアに分かれており、今回、その中の「張り作業建屋1階」の作業についてご紹介いたします。
01:入荷検品スペース

商品が入荷すると、まず商品の状態を確認します。
熟練のスタッフだからこそ気づけることも多く、お客様からご依頼をいただいているところ以外でも、修理した方が良いところがあれば、お客様にご提案させていただくことがあります。
02:生地剥がしスペース

入荷検品が終わると、商品の生地を剥がすスペースに移動させます。
生地はタッカー針というホチキスの芯のようなもので留まっており、1本1本丁寧に取り外していきます。
1日が終わるとタッカー入れが満杯になります。
03:木部修理スペース

生地を剥がし終わると、木のフレームにぐらつきやゆがみが無いかを確認します。
ぐらつきがある場合は木部を修理しますが、ぐらつきの原因は様々なので、いろいろな道具や部材を駆使してぐらつきを直していきます。
04:ウレタン張り場

ウレタンをフレームに貼るスペースです。椅子の座り心地を左右する重要な工程です。
硬さの異なるウレタンを貼り合わせる作業を行います。
05:リノベーション家具エリア

最後はリノベーション家具用のスペースです。
実は今回ご紹介したマルニファニシングでは、7月より新たなサービスを始めました。
飲食店やご家庭などで長年ご利用いただいたユーズド家具を、素材の経年変化を活かしながら現代の感覚でリノベーションし、オンラインショップで販売しています。
工場の一角にはリノベーションを待つ家具が保管されており、これから分解・修繕し、蘇らせていきます。どのように新たな価値が創造されるのか、そしてどのような方にご利用いただくのか、見ていると想像が膨らんでいく、今後がとても楽しみなスペースです。
オンラインショップでは素敵な商品が販売されていますので、ぜひご覧ください。
マルニファニシング 公式オンラインストア | リノベーション家具
-----------------------------
修理の詳細は こちら
修理のお問い合わせは こちら